



發布日期:2020-08-20
來源:裝配工程網一、總體實施思路
通過標準化設計、工廠化生產、裝配化施工、一體化裝修和信息化管理 ,達到工期、質量、安全及成本總體受控的目的。

二、標準化設計
1、施工圖設計標準化
施工圖設計需考慮工業化建筑進行標準化設計,通過標準化的模數、標準化的構配件通過合理的節點連接進行模塊組裝最后形成多樣化及個性化的建筑整體。

2、構件拆分設計標準化
構件廠根據設計圖紙進行預制構件的拆分設計,構件的拆分在保證結構安全的前提下,盡可能減少構件的種類,減少工廠模具的數量。

3、節點設計標準化
預制構件與預制構件、預制構件與現澆結構之間節點的設計,需參考國家規范圖集并考慮現場施工的可操作性,保證施工質量,同時避免復雜連接節點造成現場施工困難。
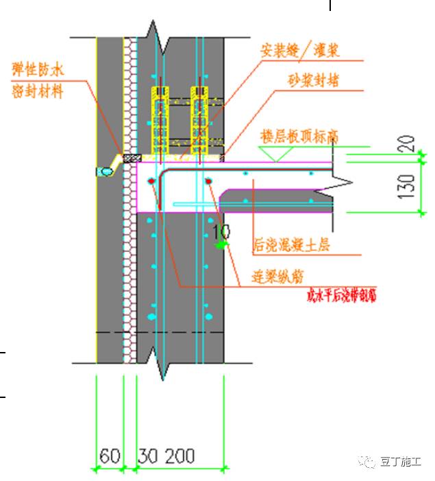
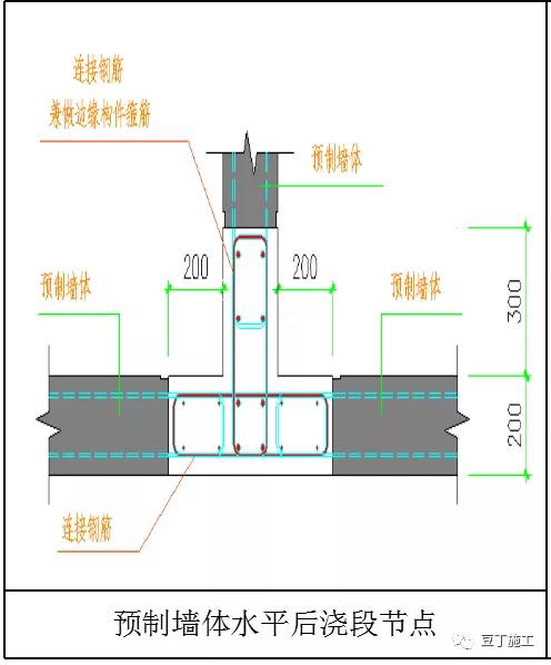
3.1、預制外墻節點設計

預制外墻套筒連接區豎向節點大樣
采用半灌漿套筒,預制墻板內鋼筋通過機械連接與灌漿套筒進行連接,下層墻體外伸鋼筋插入上層墻體套筒空腔內,后注入注入高強灌漿料進行錨固。
墻體外側采用彈性防水密封膠條進行封堵,防止注漿料從外側滲漏,同時可保證上下層墻體之間保溫的連續性。

非套筒區域直接通過注入高強灌漿料連接,現澆板面筋伸入預制外墻進行彎折錨固。
墻體頂部設計倒梯形型箍帽保證墻體豎向鋼筋的連續。

預制外墻板墻體一側預留鋼筋為開口箍,出筋長度為180mm。
后澆段內墻體箍筋為分離式箍筋,便于后澆段區域箍筋的綁扎。
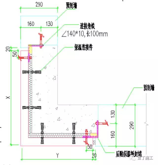
3.2、PCF板加固節點設計

L型PCF板加固節點
PCF板與混凝土后澆段通過保溫拉結件粘接連接,PCF板與兩側預制外墻連接通過設置L型連接角鐵,角鐵型號為140×10,長100mm。
轉角PCF板安裝時通過角鐵進行初步的固定,保證PCF板與相鄰兩側外墻之間的平整度及拼縫;

疊合板與端支座之間水平方向設計搭接10mm,墻體可對疊合板起到部分支撐作用,同時可以防止漏漿。
3.3、疊合板連接設計

疊合板與疊合板拼縫處預留120mm寬、5mm厚的凹槽,通過此凹槽預留因樓板標高控制偏差或樓板厚度偏差引起的錯臺問題,后期裝修時在凹槽內鋪設網格布作為加強措施進行裝飾面的施工,保證樓板的整體平整度。
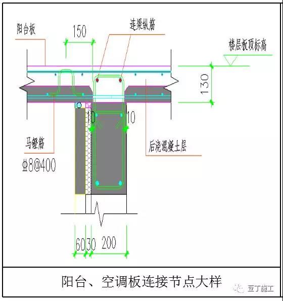
3.4、陽臺、空調板節點設計

預制陽臺及空調板為懸挑結構,與樓板連接采用甩筋方式連接。預制陽臺上部鋼筋伸入樓面現澆板,與面筋綁扎連接。預制陽臺與預制外墻內葉板搭接10mm。
3.5、預制樓梯節點設計

3.6、門窗部位節點設計

門洞口細部做法
預制外墻門洞左右兩側及上部設置防腐木磚,用于門的固定,在底部設置一道加強鋼加強墻體的整體剛度,保證墻體吊裝過程中不因墻體自重發生損壞。


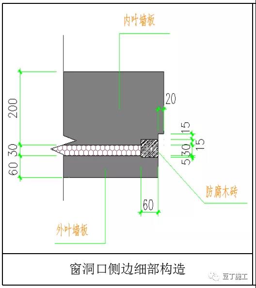
在窗洞上下口和側部都設置企口、防腐木,防腐木尺寸為100X60X50mm,內穿錨筋一端錨固入內葉墻一端錨固入外葉墻,50mm厚的防腐木入外葉墻15mm,入內葉墻5mm。

窗框固定在防腐木上,窗框與預制構件之間的縫隙用發泡劑填充,并用硅酮耐候密封膠封堵。窗戶四邊留有20mm企口。
3.7、預留洞口節點設計

外掛架預留孔采用喇叭口形:其中內葉墻內側面、內葉墻外側面、外葉墻外側面處孔徑分別為30mm、40mm、60mm。

在預制外墻板上預留向下傾斜的洞口。空調孔洞需預留在預制墻板中。
預制外墻及保溫板部位DN75PVC直接頭提前在預制構件預埋,后澆墻板DN75PVC管在現場后連接。
3.8、預制外墻拼縫處節點處理

外墻水平縫節點
外墻從內至外依次為現澆混凝土、擠塑聚苯板保溫層、混凝土外葉板、聚乙烯泡沫塑料棒、建筑耐候密封膠,保溫層之間選用彈性防水密封材料封堵。
聚乙烯泡沫塑料棒,塞入指定深度,保證建筑耐火密封膠打入一定深度,起到密封作用。

外墻由內至外依次為現澆混凝土、巖棉封堵、防水空腔、聚乙烯泡沫塑料棒、建筑耐候密封膠。
三、工廠化生產
預制構件在工廠進行統一生產,本工程采用的預制構件生產廠家為中建科技武漢有限公司,有關構件生產方面的內容由構件廠進行介紹。

四、裝配化施工
1、平面布置
道路布置:現場施工道路需盡量設置為環形道路,其中構件運輸道路需根據根據構件運輸車輛載重設置成重載道路;道路盡量考慮永臨結合并采用裝配式路面。
堆場布置:吊裝構件堆放場地要以滿足1天施工需要為宜,同時為以后的裝修作業和設備安裝預留場地。預制構件堆場構件的排列順序需提前策劃,提前確定預制構件的吊裝順利,按先起吊的構件排布在最外端進行布置。
大型機械:根據最重預制構件重量及其位置進行塔式起重機選型,使得塔式起重機能夠滿足最重構件起吊要求。

2、吊裝順序
提前策劃單位工程標準層預制構件的吊裝順序,構件出廠順序與吊裝順序一致,保證現場吊裝的有序進行。
預制構件吊裝順序為:預制墻體-疊合梁-疊合板-樓梯-陽臺-空調板。

外墻吊裝順序為先吊外立面轉角處外墻,通過轉角處外墻作為其余外墻吊裝的定位控制基準,PCF板在兩側預制外墻吊裝并校正完成之后進行安裝。

疊合梁、疊合板等按照預制外墻的吊裝順序分單元進行吊裝,以單元為單位進行累積誤差的控制。
3、計劃跟蹤
根據工程的總進度計劃編制工程的裝配式結構施工進度計劃,構件廠根據結構施工進度計劃編制構件的生產計劃保證構件能夠連續供應。
與常規項目不同,裝配式混凝土結構主體結構施工還需編制構件的安裝計劃,分為季度計劃、月計劃、周計劃等,并將計劃與構件廠進行對接,以此指導預制構件的進場。

4、構件驗收
驗收程序

重點驗收內容

5、施工工藝及質量控制

5.1預制墻體安裝控制要點




5.2、疊合梁、板安裝控制要點


5.3、預制陽臺安裝控制要點



5.4、預制樓梯安裝控制要點


5.5、模板安裝施工質量控制要點
項目現澆部分采用鋁合金模板,利用鋁模成型效果十分規整的特點與預制構件尺寸精確的特點結合,做到整個結構的免抹灰。
裝配式結構鋁模較傳統現澆部分的主要區別為預制墻體后澆帶部分,利用預制墻體的外葉板或PCF板作為外模,鋁模僅加固內側部分,后澆段外側僅設置背楞加固。外側背楞與內側背楞之間的連接采用在預制墻體內預埋止水螺桿內桿的措施。



5.6、注漿工程施工質量控制要點




6、驗收組織
6.1、分部、分項工程驗收
裝配式結構工程質量驗收合格后,應將所有的驗收文件歸入混凝土結構子分部工程存檔備案。

6.2、混凝土結構檢驗批劃分
裝配式結構預制構件原材料、預制構件安裝工程、注漿工程檢驗批均按照每流水段為一個檢驗批進行檢驗。
五、一體化裝修

外墻門窗及外墻飾面磚隨預制外墻同步工廠化生產,避免后期裝修。

采用夾心保溫外墻板,外墻保溫工程不單獨施工。

現澆部分采用鋁模施工,與裝配式結構結合,可避免后期抹灰,可直接進行墻體裝飾面的施工。

水電等設備專業線盒在預制構件內預埋,避免后期剔鑿。
六、信息化管理

采用BIM技術對現場進行建模應用,模擬施工現場,對預制構件進行深化設計、施工進度及構件吊裝模擬。

對現場進行實時視頻監控

預制構件內預埋芯片實時跟蹤預制構件在生產、出廠、卸車、安裝及驗收的狀態。
七、成本對比



